上海外滩源著复兴里(售楼处) 首页 - 外滩源著复兴里销售中心 - 环境 - 户型 - 价格 - 地址 - 楼盘详情 - 配套 - 电话 - 交房时间 - 配套 - 电话 -交房时间
扫描到手机,新闻随时看
扫一扫,用手机看文章
更加方便分享给朋友
📞 官方售楼处电话:400-9966-940(开发商直连,无中介)
🕘 服务时间:9:00-21:00,周末无休
📌 预约提示:案场为预约制,需提前电话预约看房
💡 温馨提示:临时到访建议提前1-2小时致电告知,避免接待不及时
售楼处电话:400-9966-940⭐⭐
售楼处预约热线☎:📞 400-9966-940☎☎🏠🏠【官方认证】📱✔✔✔
(温馨提示:本项目参观样板间采取预约制,为了不耽误您的行程,过来参观请提前来电进行预约看房或咨询项目详情)


主推房源
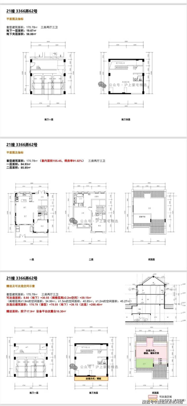
62# 面积170.78㎡,地下78.55㎡,西边套,单价161920元/㎡
总价27652735元
25# 面积190.08㎡,地下77.88㎡,单价159503元/㎡
总价30318402元
中建壹品·外滩源著
LUXURY HOUSE
在售详情
滨江最后一块留白地
杨浦东外滩世界级科创中心
【中建壹品·外滩源著】
推出100套风貌别墅
建面约150-350㎡
滨江风貌别墅
均价16万/㎡
总价2300万起
地上两层
赠送阁楼地下室
带花园
项目仅接受预约参观
项目介绍
项目开发商:中建三局
项目所属板块:杨浦滨江
项目拿地时间:2024年3月-2094年3月
项目产品类别:70年产权风貌类别墅
项目交付条件:毛坯
项目交付时间:合同内2027年6月前(实际会提前)
项目总体量:100套
次开盘:16,17,18,19,20,21,22共计7幢27套
项目价格体系:16万均价(一房一价)2300万起
项目主力面积段:150㎡4套、170㎡25套、181㎡-200㎡65套、217㎡-230㎡5套、354㎡1套
样板间展示:190㎡、220㎡
项目物业公司:中建壹品项目
物业费:地上:12.16元 地下:6.08元
车位处置:暂定(租赁750元/月含管理费)
车位配比:大部分有3个,个别1个或者2个
项目会所情况:项目自带1200平下沉式会所(健身房、恒温泳池、行政酒廊等)
产品层高:一楼3.6米、二楼3.3米、地下两层:B2为停车库和入户门厅<3米>、B1为纯地下室<3.5米>附赠:阁楼和花园
项目主要卖点
1、市面为数不多的纯两层的风貌别墅项目,同样栋距6米左右,相比其他项目更为舒适,不压抑,且纯两层面宽大,至少8.5米,最大12.1米,利用率更高;
2、次开盘房源均为小区中心位置区域;
3、大多数风貌别墅门槛较高,本项目2300万起即可入住;
4、背靠杨浦滨江和复兴岛上海市市重点规划大背景,未来成长空间不可限量。
样板间实景图
Part.1
滨江的价值很高,自然价格也很高,纵观滨江核心段的售价,杨浦滨江当前仍处于价格洼地,是迈入滨江生活圈层的不二的“入场券”。

▲ (注:部分板块根据土拍价值推导或以上期售价为示例)
当然这里并不是说杨浦滨江价值不够,相反小编反而觉得杨浦滨江是更适合居住与生活的滨江板块,而且未来的价值力也不低。
首先,丰盛的资源提供浓郁的“烟火气”,致敬着过去也展望着未来。大家都知道杨浦滨江曾是“工业锈带”,聚集着许许多多的知名工业设施,所以这里是上海的记忆。而今,将工业旧址改造成为网红咖啡馆、自然生态花园以及艺术中心、博物馆等丰富场所,既满足日常生活的“烟火气”,也传承着上海文化的“烟火气”。
相比其他,杨浦滨江显得更为的开放与休闲,因为许多的空间都是对外的,许多的艺术装置也都是室外的,并且是永久性的,所以在杨浦滨江可以漫无目的的游逛,随心所欲的行走,因此网友们称这里是上海最悠闲的滨江段。

▲ (杨浦滨江户外部分艺术装置)
其次,杨浦滨江在上海“一江一河”发展、“十四五”规划中的定位,是内环滨江带中唯一的“科创研发”板块,承载着世界级科创中心的使命。说“世界级的使命”未免太大,不如先说说眼前。
随着字节跳动、美团上海科技中心、哔哩哔哩等知名互联网企业的落户建设,这里已然成为了科创产业的名片。未来,杨浦滨江还将有望聚集1000家以上的在线新经济企业,产值规模达3千亿元,而这些可以为人们和板块带来什么——就近就业。
在当下工作离家近是多少人的梦想,不用早起通勤,也不用花费巨额停车费,工作与生活的平衡感让幸福指数高升。所以于个体来说,这里是实现职住平衡的理想之地。

▲ (示意效果图,仅供参考)
其三,杨浦滨江很大,未来潜力也很大。杨浦滨江全长15.5公里,是上海中心城区最长的滨江岸线。开发体量与规模也是滨江板块中最大的,南段的规划商办量大约是400万方,远超过徐汇滨江的约300万方。大规模的发展,促使得片区的资源更丰富,配套体系更完善。
以及未来,这里将涌入20万+的高新人才,加速与助力板块的发展。
▲ (示意图,图片来源于网络,仅供参考)
还有一点“小事”,更体现杨浦滨江的人性化和友好性——无障碍环境建设。比如,在杨浦滨江你会看到这样的路面设计,这是为了让轮椅出行的人群更通畅。

▲ (示意图,图片来源于网络,仅供参考)
比如,常态了公共直饮水机,这里的设计是先有一条无障碍通道通往,然后针对坐轮椅的人、小朋友以及常规人群做了三个高度的饮水口。
▲ (示意图,图片来源于网络,仅供参考)
还有这种首创的、特殊性的咖啡桌,可以缓解不必要的尴尬与不便,满足不同人群的需求。
▲ (示意图,图片来源于网络,仅供参考)
举例此类“小事”,就是想说明杨浦滨江的可居住性很高,而且更能从小事看出整个区域规划的前瞻性和用心度。
Part.2
中建壹品·外滩源著由19F高层与风貌别墅组成,是上海中心难得的墅境住区。

▲ (效果图,仅供参考)
近年来,风貌别墅逐渐走近大众视野,被人们所铭记。一方面是石库门风格的建筑激发了城市的情怀,另一方面则是高昂的价格使人惊叹不已。
风貌别墅有一个很显著的特征,就是身处历史风貌保护区内或周边,这也进一步体现了项目的土地拥有非常高的“文化底蕴”。地处上海中心为数不多的历史文化风貌区内,土地的价值与精神不言而喻,所以中建壹品·外滩源著不止是一个地产项目,还代表着上海文化的名片。
第二点土地价值体现在未来的社区圈层。风貌别墅因其高昂的价格,未来入住者必定是城市的塔尖人群,与全球高净值群为邻,体验环境予人的成长性,同时富豪的聚集带动提升土地的价值。
第三点规划带来的居住利好。南向低密别墅,使得高层建筑全线无遮挡,那怕是一、二层的低区住宅也拥有较长的日照时间,居住的舒适感会非常强。同时,高层的住宅更可一览黄浦江风貌,甚至对望上海之巅。
最后一点是土地的通达性。项目距离12号线爱国路站直线约400米,步行可达,这在杨浦东外滩一众不靠轨交的项目中是非常难得的。
通过12号线,可畅达北外滩、南京西路、人民广场等核心CBD。同时,这里对于浦东客户来说非常的友好,因为有5条隧道、2条道路可以通达。
浦东浦西的通达性,达到人口的聚合效应,进一步体现了土地未来的价值。

▲ (示意图,仅供参考)
Part.3
关于精装品质的细节,这里就不一一说道了,因为解读的文章很多也很详细,但我想说一说这个高品质产品背后带来的两个价值点:
第一点,情绪价值,好的品质可以提供精神需求。
当我们首次进入项目时,会被这个门把手所惊艳,先不说工艺的复杂和材质的昂贵,但就造型与风格就很引人入胜,要一探内部究竟。

▲ (样板房实拍图,仅供参考)
当然,室内更超乎想象。除了在选材上择取了高贵高质的石材、皮革影木等高档材质外,制作工艺才是真正的品质表现。从无限连纹地砖铺设到花瓣拼式的地板效果,以及香格里拉翡翠水刀拼花的背景墙面,整个空间展示的不仅仅是品质,更是审美,接近于艺术的审美表达。
当代人在物质充盈的时代下,更注重精神的丰盈,美感会使人产生愉悦的心情。中建壹品·外滩源著,既提供了品质空间,让物理的生活更加舒适与便捷,而打造的艺术空间,则让内心的世界更加丰满与充实。
所以,家是身心灵共同的容器,一个理想的家更需要满足为精神的滋养。
▲ (样板房实拍图,仅供参考)
第二点,安全保障,好的品质可以解决后顾之忧
精装修房发展至今,许多购房都都发现一个问题,就是维修难。因为前期使用的品牌家电虽然品牌厉害,但是维修找不到型号。
中建壹品·外滩源著大大解决了这个问题,不管是美诺三件套还是利勃海尔冰箱还是卫浴五件套,所有厨电品牌都使用的零售款,可以在线下找到同型号的产品,便于维修,这就给了住户很大的安全保障,毕竟小件维修好过整体更换,费时费力还费财。
如有问题欢迎来电咨询,专业一对一热情服务,让您用专业眼光去买房。楼盘项目全面介绍(包含楼盘简介,均价,房价,现房,期房,别墅,叠墅,大平层,价格,楼盘地址,户型图,交通规划,备案价,备案名,项目配套,样板间,开盘时间,认筹时间,楼盘详情,售楼处电话,最新消息,最新详情,周边配套,一房一价,最新进展等详情咨询)楼盘详情丨价格丨更多优惠丨机不可失丨欢迎致电丨诚邀品鉴!售楼处位置丨特价房丨工抵房丨剩余房源丨户型图丨最新消息配套设施是反映楼盘生活便利程度的重要因素,包括小区内的运动场所、停车场、公共设施等。物业服务则直接关系到居住者的生活品质,包括安保服务、保洁服务、设备维护等。具体到街道、区域名称,临近交通线路、自驾路线。商业、教育、医疗等配套设施分布,总占地面积、总建筑面积数据,容积率,绿化率,得房率,梯户比,物业费,小高层、洋房、高层、独栋别墅、叠加别墅、联排别墅,总户数、楼层分布,面积范围,均价/总价。首付比例、贷款政策,精装交付,含中央空调、地暖等系统,70年住宅产权,物业公司及资质,预计交付时间或施工进度,当前购房优惠政策
▲ (样板房实拍图,仅供参考)
不止于此,中建还可启了对供应链强管控的机制,所有供应链管控都来自各条线高管直管。比如,厨房的美诺厨电、利勃海尔冰箱、达克密瓷岩板的进场和安装都来自这些品牌的集团高管到现场督工。
甚至还开启了供应链的黑名单模式,如果有供应商存在品质或者工艺问题就会被永久拉黑,所以这才造就了项目的高品质空间与工艺,也是在源头帮业主把控质理,省后顾之忧,保障居住环境的可持续性。
买房是人生大事,掌握几个核心知识点,就能避开大部分坑,快速理性置业。
一、先确认2个前提
二、选房关键3点
三、交易避坑核心
四、交房小提醒
收房时核对“三书一证一表”,仔细验房(墙面、水电、门窗等),有问题及时要求整改,收房后及时办理房产证。
声明:本文由入驻焦点开放平台的作者撰写,除焦点官方账号外,观点仅代表作者本人,不代表焦点立场。
