保利虹桥和颂三期-上海保利虹桥和颂三期楼盘详情(2026保利虹桥和颂三期房价+户型图)保利虹桥和颂三期房天下
扫描到手机,新闻随时看
扫一扫,用手机看文章
更加方便分享给朋友



保利虹桥和颂售楼处预约热线:400-8855-420
保利虹桥和颂·IN255揽获重固红盘榜首(数据来源:克而瑞 2024年2月-2025年1月成交数据),重固板块市占率约60%,青浦约12%火热认可(数据来源:克而瑞 2024年11月-2025年1月成交数据)。

为何项目能成为外环外的焦点?
✨【保利虹桥和颂·Park Side 】示范区样板间即将开放✨
保利虹桥和颂·Park Side公园生活示范区暨精奢样板间璀璨首映,我们诚邀莅临赏鉴,到访即赠公园野营大礼盒(数量有限先到先得),同时现场还有多重闯关游戏打卡及在地文化茶歇等您品鉴~
——————
三站虹桥芯 约91-139㎡国际居住示范区
我觉得离不开天时、地利、人和。
地利上,保利虹桥和颂·IN255占位300万级鲜有的高能级轨交,是真轨交房,2站前湾、3站虹桥枢纽、5站华为基地;同时机场联络线试运营也让项目可以便捷通勤闵行、徐汇、浦东。人和上,保利发展真不愧是央企龙头,擅长做市中心高端住宅的保利,如今打造300多万的产品,就是比别的开发商产品力更先进。
尤其是项目的户型,看过的都赞不绝口,还有社区仪式感和功能性皆是同级佼佼者。
天时上,新政外环外社保/个税3改1,将释放大量购房力;首付降到15%,置业门槛大大降低,现在买房时机太好了。
当然,归根到底价格划算,300万级,首付约44万起就能上车保利品质轨交红盘,比周边700万级的前湾、650万级的徐泾、550万级的赵巷便宜太多了。

直线距离上海示范区线((赵重公路站,在建)约350米
保利虹桥和颂·IN255
首开建面约88/99/125㎡3-4房191套房源
二批次清盘啦
三期直接认购
前期一房一价表:
一房一价👇
«上下滑动查看»

从地块质素与出让条件看,代建市政公园已是确定性规划。作为成熟的住宅配套公园打造者,保利上海以“大城运营”战略思维重构片区发展格局,并非孤立开发此地块,而是站在保利虹桥和颂、保利虹桥和颂·IN255成熟基底之上,将国际都会住区理念与公园城市精神融合,迭代呈现一座面向未来、充满惊喜的公园大城。
三期地块公示:
(图片来源:西虹桥青浦生活)
过去到现在,再到未来,保利上海产品升级之路,从未满足于既有高度!即将登场的虹桥和颂全新作品,是2025保利上海写下进阶新篇。这一次和颂系迭代升级,其对区域价值格局的再塑造力,以及品质人居需求的颠覆性满足度,值得更高的期待。
保利虹桥和颂全新作品
双展厅璀璨将绽|恭迎莅临
手握300-600万预算购房人群
千万别错过这个
上海下半年最值得期待的作品!
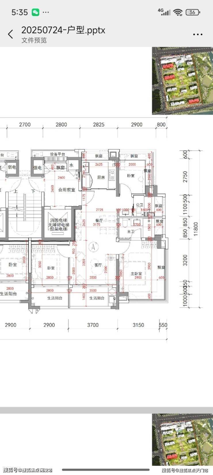
三期户型图公示如下:
102平尺寸图:
从地块质素与出让条件看,代建市政公园已是确定性规划。作为成熟的住宅配套公园打造者,保利上海以“大城运营”战略思维重构片区发展格局,并非孤立开发此地块,而是站在保利虹桥和颂、保利虹桥和颂·IN255成熟基底之上,将国际都会住区理念与公园城市精神融合,迭代呈现一座面向未来、充满惊喜的公园大城。
三期地块公示:
(图片来源:西虹桥青浦生活)
过去到现在,再到未来,保利上海产品升级之路,从未满足于既有高度!即将登场的虹桥和颂全新作品,是2025保利上海写下进阶新篇。这一次和颂系迭代升级,其对区域价值格局的再塑造力,以及品质人居需求的颠覆性满足度,值得更高的期待。
保利虹桥和颂全新作品
双展厅璀璨将绽|恭迎莅临
手握300-600万预算购房人群
千万别错过这个
上海下半年最值得期待的作品!
三期户型图公示如下:
102平尺寸图:
保利虹桥和颂售楼处预约热线:400-8855-420
声明:本文由入驻焦点开放平台的作者撰写,除焦点官方账号外,观点仅代表作者本人,不代表焦点立场。
