南康东山新区未来规划火热出炉!
扫描到手机,新闻随时看
扫一扫,用手机看文章
更加方便分享给朋友
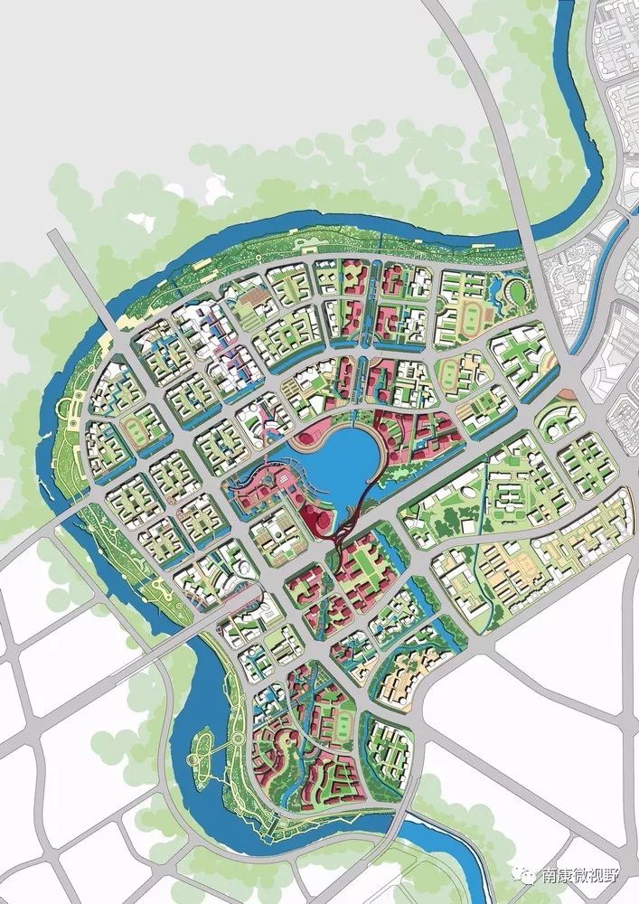
东山新区城市设计由赣州市城乡规划设计研究院南康分院组织编制,东山新区城市设计编制范围为南至泰康路,东至大广高速,西、北至章江,面积为13.8km2,包括朱边、窑边、东山等三个行政村。
主干道效果图
东山新区定位为南康城市公共中心,城市设计依据高效紧缩、多元和谐、生态网络的设计理念,提出将东山新区打造为具备良好城市环境的价值新区、布局合理的秩序新区、生态活力的健康新区、文化体制的智力新区,规划提出将东山新区打造为聚集南康经济与社会发展核心要素的中央活力区的总目标。

总体规划效果图
规划东山新区形成一心两轴三区的规划结构,以中央生态湖为核心打造市级城市中心,大力发展商业、金融、咨询等高端服务业,成为南康市内服务档次和聚集度较高的中央活力核心地区;以赣南大道为依托的城市空间拓展轴和以章江为依托的滨江景观生态轴,打造体现城市特色的重要轴线空间;由此形成中央活力区、综合商贸区和生态居住区三个功能片区。

中央生态湖效果图


“引风入城”风道规划图
该规划创新性地提出了“引风入城”和“引水入城”的策略:“引风入城”是指顺应主导风向,结合城市道路和建筑空间布局,开设一条宽约120 m的绿轴风廊,在夏季将郊野的新鲜空气引入城市中;“引水入城”是指将章江水引入城市内部,结合场地内原有章惠渠、文峰河等水系,通过重力流在区内形成集江、河、湖、泾于一体的蓝色网络。“风”与“水”的结合,极大地丰富了城市景观,为新区的空间品质增添了灵性。在城市设计中还将绿地和水系有机结合在城市空间布局中,围绕章江沿岸景观、带状水系和中央人工湖,形成三层环状绿地景观,并通过风道和水系相连,大大提高城市居民使用公园的便利性。

总体鸟瞰图



项目建成效果图

核心区水系规划平面图
来源:南康微视野
声明:本文由入驻焦点开放平台的作者撰写,除焦点官方账号外,观点仅代表作者本人,不代表焦点立场。
